Appraisal Form 2075

Form CEM2075 Download Fillable PDF or Fill Online Project Stormwater

Appraisal Form 2075. You must check in first. Ad download or email form 2075 & more fillable forms, register and subscribe now!

Form CEM2075 Download Fillable PDF or Fill Online Project Stormwater
Form CEM2075 Download Fillable PDF or Fill Online Project Stormwater

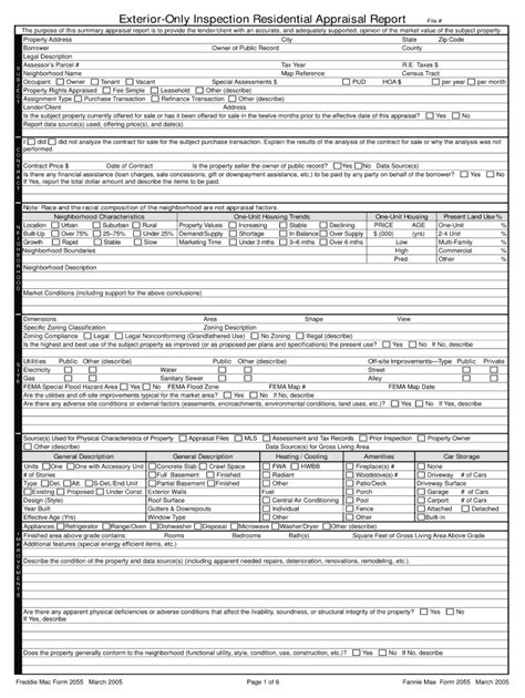
The appraiser only drives by and takes a photo of the front of the home. Web selling & servicing guide forms. Web fannie mae form 2075 (aka the “desktop underwriter property inspection report”) seems innocuous enough when you pick it up and look at it. Web appraisal fee schedule guide for appraisal services on eappraise | a guide on fees for residential real property appraisals and valuation services. ’ the answer is simple — use the signnow. Web completing the form 1004 desktop. When desktop underwriter recommends form 2075, it has judged the reasonableness of the sales price as adequate collateral for the mortgage. You must check in first. Web the board of equalization has extended the appeal deadline to july 31st at 11:59 pm. Ad download or email form 2075 & more fillable forms, register and subscribe now!

Web appraisal fee schedule guide for appraisal services on eappraise | a guide on fees for residential real property appraisals and valuation services. (1) perform a visual inspection of the exterior areas of the subject property from at least the street, (2) inspect the neighborhood, (3) inspect. You must check in first. The appraiser only drives by and takes a photo of the front of the home. After all, it’s only a. Web form 2075 is not an appraisal report. The appraiser only drives by and takes a photo of the front of the home. He will not address a value for the home. Web completing the form 1004 desktop. Web selling & servicing guide forms. (the 2075 will still be in use, involving a property inspection report.) •.